ภายในบ้านที่มีรั้วรอบขอบชิดปิดกั้นตัวเองจากตึกสูงที่รายล้อม “บ้านรอบ” อ้าแขนเปิดรับสายลม และแสงแดดเข้ามาไว้ในอ้อมกอดท่ามกลางบรรยากาศที่ทุกคนในครอบครัวสามารถพบปะพูดคุยกันได้โดยไม่สูญเสียความเป็นส่วนตัว
สายตาภายนอกได้แต่จ้องมองเข้ามาด้วยความอิจฉาปนความสงสัย แต่บ้านหลังใหญ่ที่แทรกตัวอยู่ท่ามกลางแมกไม้ใจกลางเมืองแห่งนี้ก็ไม่ยอมเปิดโอกาสให้ใครสอดส่องเข้ามาเห็นความเป็นไปภายในบ้านแม้แต่น้อย ด้วยการวางผังที่แยก “รอบนอก” ออกจาก “รอบใน” ได้อย่างเด็ดขาด บ้านหลังนี้จึงได้รับการตั้งชื่อว่า ‘บ้านรอบ’ บ้านซึ่งสามารถเปิดรับแสงแดด และสายลมพร้อมกับสัมผัสบรรยากาศภายนอกได้อย่างเต็มที่ โดยที่ยังคงรักษาความส่วนตัวของคนในบ้านได้อย่างลงตัว
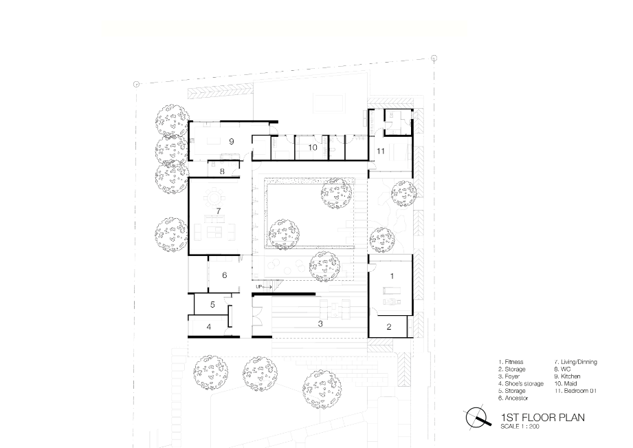
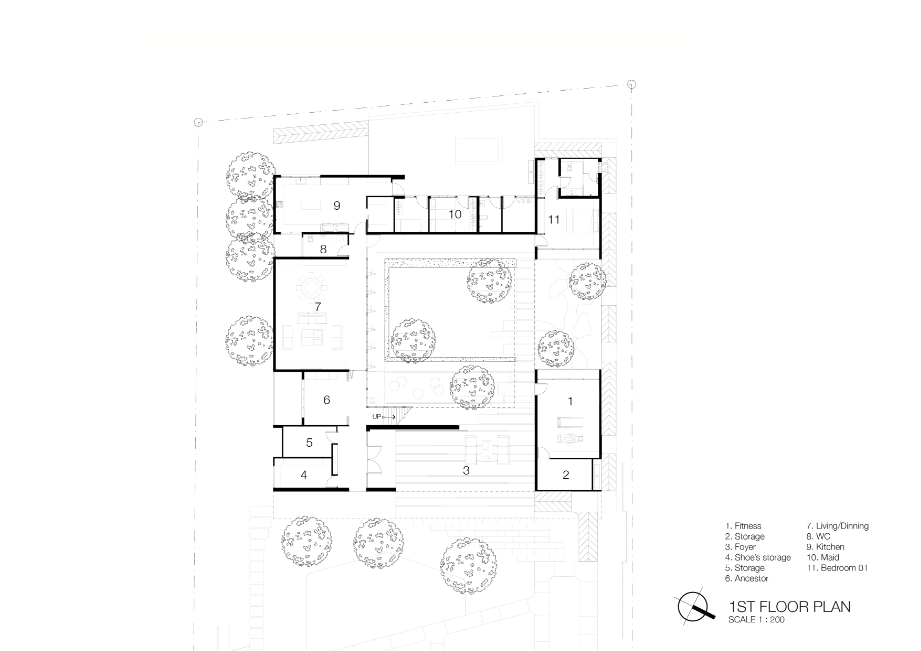
  เพื่อสร้างบ้านที่เปิดโล่ง มีบรรยากาศสงบและสามารถชื่นชมสวนได้อย่างเต็มที่ บนทำเลท่ามกลางสายตาของเพื่อนบ้านนับร้อยจากอาคารพักอาศัยขนาดสูงที่ขนาบอยู่ด้านข้าง ทีมสถาปนิกจาก Integrated Field (IF) จึงต้องใช้ทั้งการวางผัง การจัดสวน และตัวอาคาร มาเป็นเครื่องมือการแก้โจทย์งานออกแบบให้ลงตัวมากที่สุด โดยวางพื้นที่ซึ่งไม่ต้องการช่องเปิดมากไว้ด้านนอกสุด ทำให้บ้านเหมือนมีกำแพงขนาดใหญ่คอยกำบังสายตาคนภายนอก จากนั้นจึงสร้างพื้นที่เปิดโล่งเป็นสวนตั้งอยู่ใจกลางบ้านช่วยสร้างบรรยากาศที่ปลอดโปร่งโดยคงไว้ซึ่งความเป็นส่วนตัวของผู้ที่อยู่อาศัยภายใน
  ‘บ้านรอบ’ เป็นงานออกแบบที่คำนึงถึงความสัมพันธ์ทั้ง ‘รอบใน’ และ ‘รอบนอก’ ซึ่งมาพร้อมกับวิธีคิดที่ต้องการสร้างความเป็นส่วนตัวจากพื้นที่ ‘รอบบ้าน’ โดยผูกโยงเอาฟังก์ชั่นของพื้นที่ส่วนกลาง ตลอดจนทางสัญจรเข้าด้วยกันให้ไหลเลื้อย ‘ล้อมรอบ’ คอร์ทกลางอีกชั้นหนึ่ง” ทีมสถาปนิกจาก IF กล่าว “สวนสีเขียวที่ ‘รายรอบ’ ตัวอาคารทําหน้าที่เป็นปราการธรรมชาติในการป้องกัน สมาชิกจากสิ่งรบกวนและสภาพแวดล้อมภายนอก เพื่อสร้างบรรยากาศภายในที่สงบ ผ่อนคลายและไม่วุ่นวายจนเกินไป”
เมื่อสามารถสร้างความเป็นส่วนตัวจากพื้นที่รอบนอกได้แล้ว การใช้โครงสร้างเหล็กและหน้าต่างบานเฟี้ยม ทำให้อาคารดูโปร่ง และเปิดโล่งรับแสงธรรมชาติและลมได้อย่างเต็มที่ ในขณะเดียวกัน ไอความร้อนก็จะผ่านการกรองจากร่มไม้และกระจก Insulated Glass ก่อนที่จะเข้าไปในตัวบ้าน นอกจากนั้น ยังมีการใช้ช่องแสงจากหลังคา Sky Light ที่สามารถรับแสงสว่างโดยที่กันสายตาจากคนภายนอกได้อย่างมีประสิทธิภาพอีกด้วย
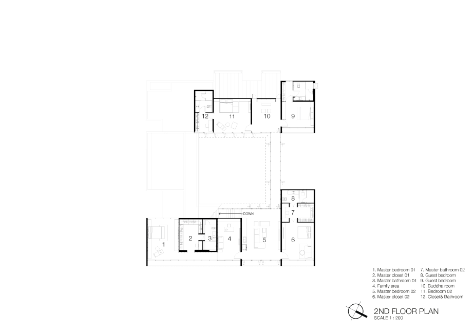
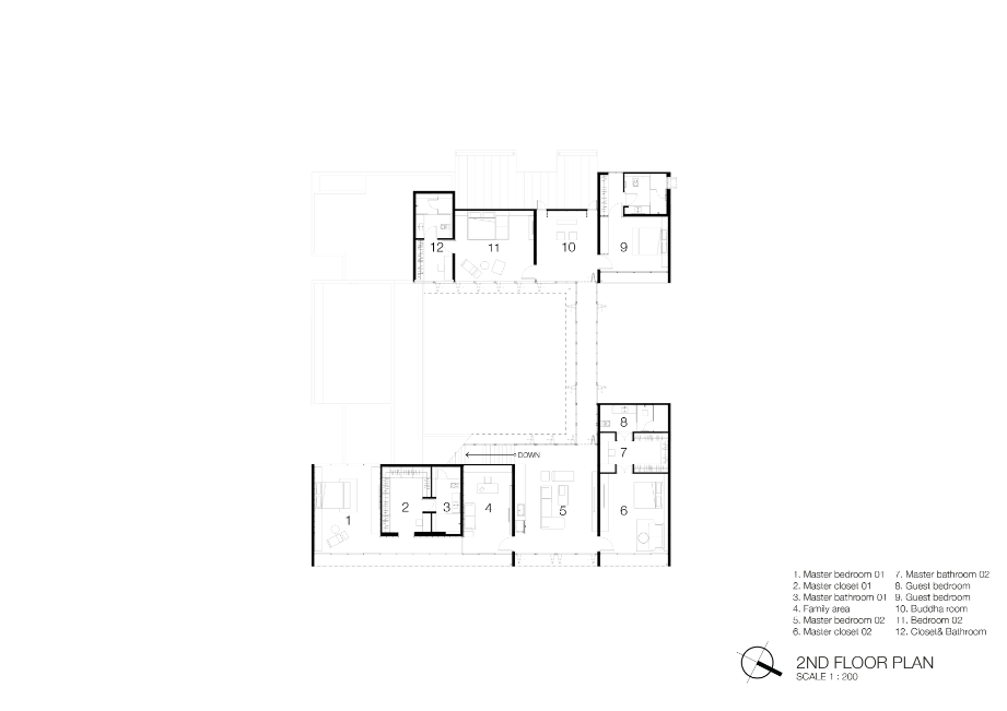
  เนื่องจากสมาชิกในบ้านมีทั้งพ่อแม่ซึ่งอยู่ในวัยก่อนเกษียณ กับลูกๆ ซึ่งกำลังสร้างครอบครัวใหม่อยู่ใต้ชายคาเดียวกัน การออกแบบพื้นที่ส่วนกลางให้สมาชิกในครอบครัวทุกคนได้มีพบปะพูดคุยกันจึงเป็นหัวใจสำคัญของบ้านที่จะขาดไม่ได้ การจัดวางพื้นที่ส่วนกลางต่างๆ ทั้งห้องนั่งเล่น ห้องอาหาร ห้องพระ และห้องบรรพบุรุษ พร้อมทั้งทางสัญจรให้ล้อมรอบสวนอีกชั้นหนึ่ง ทำให้สมาชิกในครอบครัวได้มีโอกาสพบปะพูดคุยกันท่ามกลางบรรยากาศของสวนกลางบ้านที่ร่มรื่น
การตกแต่งพื้นที่ส่วนกลางของบ้านเน้นการใช้กระเบื้องหิน ผนังขาว และไม้ เพื่อให้ความรู้สึกอบอุ่นเหมาะกับสมาชิกในบ้านทุกวัย แต่ในขณะเดียวกัน เมื่อเข้าไปในพื้นที่ส่วนตัวของแต่ละคน พวกเขาก็สามารถปรับเปลี่ยนสร้างสรรค์บรรยากาศในแบบที่ตนเองต้องการได้อย่างเต็มที่
เมื่อความต้องการของเจ้าบ้านกับบริบทที่ตั้งไม่สอดคล้องกัน จึงเป็นหน้าที่ของทีมสถาปนิกจาก Integrated Field ที่จะแก้สมการในงานออกแบบอย่างสร้างสรรค์ ณ ‘บ้านรอบ’ แห่งนี้ ตัวแปรต่างๆ ทั้ง บริบทรอบนอก ผู้อยู่อาศัยรอบใน และสวนสวยรายรอบ ต่างมีปฏิสัมพันธ์กัน และนำมาซึ่งคำตอบที่ลงตัวสำหรับทุกคน
Photography: Wison Tungthunya / W Workspace
Special Thanks: Integrated Field