ศัลยกรรมใบหน้าด้วยจิตใจ
วิทยานิพนธ์ที่นอกจากออกแบบมาอย่างสะดุดตา ยังทำให้เรามองเห็นมุมมองอีกด้านของค่านิยมทางรูปลักษณ์ ที่แฝงไปกับการออกแบบและใช้งานหลักอีกด้วย
“ผมอยากทำอะไรที่สังคมไทยละเลยและมองข้ามในทุกวันนี้ เพราะในทุกวันนี้เรื่องของการศัลยกรรมกลายเป็นเรื่องปกติ ทำให้ธุรกิจความงามเข้ามามีบทบาทและแรงขับเคลื่อนทางเศรษฐกิจที่สูง แต่การศัลยกรรมในปัจจุบันจะตามมาซึ่งค่านิยมที่ผิด และบิดเบือนความเป็นวัฒนธรรมของเรา ผมเลยอยากให้การศัลยกรรมของเราเปลี่ยนมุมมองหรือเกิดข้อคิดแก่ผู้เข้าใช้”
แนวคิดจากผลงานงานวิทยานิพนธ์ของน้องปอนด์ หรือ นายศิริคุณ เคยอาษา นักศึกษา สาขาออกแบบภายใน มหาวิทยาลัยเทคโนโลยีพระจอมเกล้าพระนครเหนือ ที่หากเกิดขึ้นจริงจะสามารถสร้างประโยชน์ให้กับสังคมได้
แนวคิดจากผลงานงานวิทยานิพนธ์ของน้องปอนด์ หรือ นายศิริคุณ เคยอาษา นักศึกษา สาขาออกแบบภายใน มหาวิทยาลัยเทคโนโลยีพระจอมเกล้าพระนครเหนือ ที่หากเกิดขึ้นจริงจะสามารถสร้างประโยชน์ให้กับสังคมได้

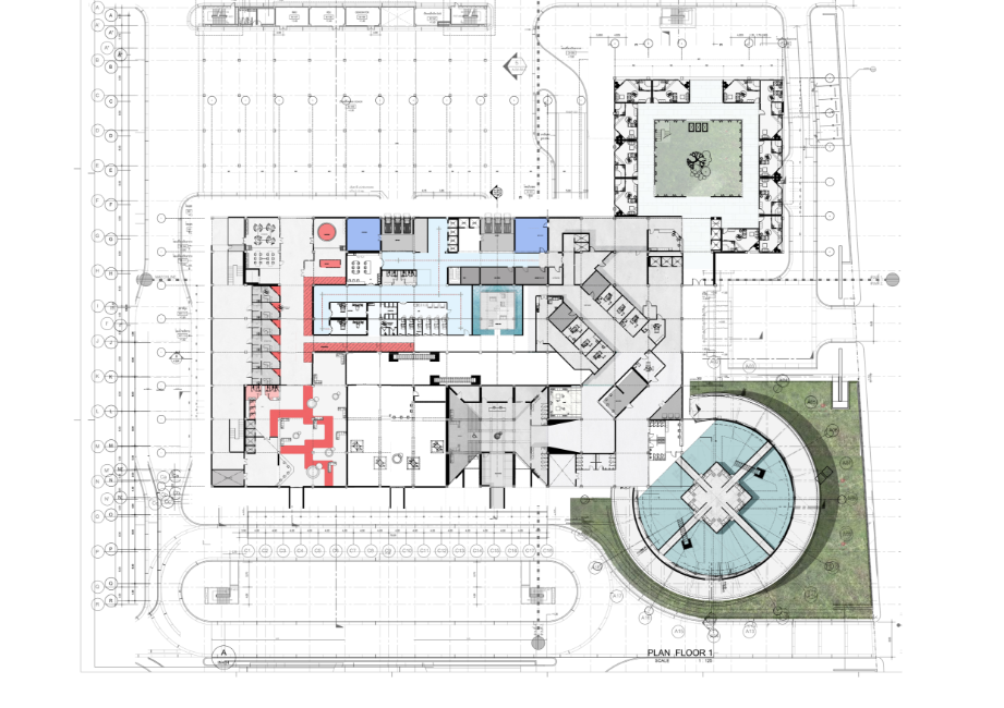
The Paak Plastic Surgery Centre and Craniofacial Foundation ศูนย์ศัลยกรรมใบหน้า เดอะพักตร์ พร้อมศูนย์ช่วยเหลือเด็กพิการทางใบหน้า โดดเด่นด้วยแนวคิดที่นำเสนอสองสิ่งที่มีความขัดแย้งมาเพิ่มมูลค่าให้ซึ่งกันและกัน ทั้งภาพรวม และคุณค่าทางใจของผู้ใช้งาน ซึ่งสถานที่ที่เสนอโครงการถูกวางไว้กลางเมืองอย่าง King Power ที่ซอยรางน้ำในจุดที่การขนส่ง และจุดเชื่อมต่อถึงโรงพยาบาลใกล้เคียงได้ง่าย
ซึ่งสิ่งแรกที่เราเห็นคือ การเปลี่ยนมุมมองค่านิยมที่ถูกมองว่าไม่ดี ให้เห็นด้านอื่นที่สามารถทำเพื่อสังคมได้ โดยการออกแบบสำหรับผู้เข้าใช้งานหลัก 2 กลุ่ม ที่ได้ประโยชน์จากการรักษาและวัยที่ต่างกัน จากผู้ใหญ่ที่ศัลยกรรมเพื่อความพึงพอใจ สามารถทำบุญส่งต่อให้เด็กเข้ามาศัลยกรรมเพื่อรักษาความพิการได้ ทำให้ศัลยกรรมเป็นแนวทางเยียวยาทั้งร่างกายและจิตใจของคนทั้งสองกลุ่มได้ และเป็นการรวมหน่วยแพทย์ผู้ให้การรักษาเฉพาะทางไว้เป็นศูนย์การแพทย์เฉพาะทางในที่เดียว
ซึ่งสิ่งแรกที่เราเห็นคือ การเปลี่ยนมุมมองค่านิยมที่ถูกมองว่าไม่ดี ให้เห็นด้านอื่นที่สามารถทำเพื่อสังคมได้ โดยการออกแบบสำหรับผู้เข้าใช้งานหลัก 2 กลุ่ม ที่ได้ประโยชน์จากการรักษาและวัยที่ต่างกัน จากผู้ใหญ่ที่ศัลยกรรมเพื่อความพึงพอใจ สามารถทำบุญส่งต่อให้เด็กเข้ามาศัลยกรรมเพื่อรักษาความพิการได้ ทำให้ศัลยกรรมเป็นแนวทางเยียวยาทั้งร่างกายและจิตใจของคนทั้งสองกลุ่มได้ และเป็นการรวมหน่วยแพทย์ผู้ให้การรักษาเฉพาะทางไว้เป็นศูนย์การแพทย์เฉพาะทางในที่เดียว


ส่วนคอนเซ็ปต์การตกแต่งและการออกแบบพื้นที่นั้นนำต้นแบบจากศาสนสถานสร้างนัยยะความสงบ แฝงไปกับสภาพแวดล้อมที่คนทั่วไปคุ้นชิน ด้วยสมมาตรของรูปทรงทางสถาปัตยกรรมมาใช้พื้นที่ภายใน เป็นการนำองค์ประกอบมาใช้ในมุมที่แปลกออกไป เช่น การนำขอบมุมมาขยายให้ผิดขนาดและทำซ้ำกัน เป็นประสบการณ์ใหม่ของการเข้าใช้พื้นที่ในประเภทนี้ และเนื่องจากเป็นสองกลุ่มผู้ใช้งานที่ต่างวัยกัน พื้นที่แต่ละส่วนจึงตกแต่งและทำสื่อการนำเสนอออกมาให้เห็นความแตกต่างที่ชัดเจน โดยมีเพียงโดมกระจกขนาดใหญ่ที่กลุ่มผู้ใช้งานใช้ร่วมกันเท่านั้น



แม้ความตั้งใจแรกของปอนด์คือ การทำโรงพยาบาลให้แปลกใหม่แล้วก็ลบรูปลักษณ์ที่จำเจออก แต่เมื่อนำมารวมค่านิยมของการศัลยกรรมในเมืองไทยแล้ว บวกกับการชี้แนะของอาจารย์ที่ปรึกษา รสนิยม และมีกัลยาณมิตรที่ดี ทำให้การเดินทางบนถนนวิทยานิพนธ์พัฒนา เติบโต และสร้างผลลัพธ์ที่ทำให้เราประทับใจอย่างที่เห็น

INFORMATION
ชื่อ : ศิริคุณ เคยอาษา
ชื่อ Thesis : The Paak Plastic Surgery Centre and Craniofacial Foundation ศูนย์ศัลยกรรมใบหน้า เดอะพักตร์ พร้อมศูนย์ช่วยเหลือเด็กพิการทางใบหน้า
ที่ปรึกษา : อาจารย์คมสัน สกุลอำนวยพงศา
สาขา : สถาปัตยกรรมศาสตร์ออกแบบภายใน
คณะ : สถาปัตยกรรมศาสตร์และการออกแบบ
สถาบัน : มหาวิทยาลัยเทคโนโลยีพระจอมเกล้า
พระนครเหนือ
ติดต่อ
[email protected]
tel. 063-332-1221
ชื่อ : ศิริคุณ เคยอาษา
ชื่อ Thesis : The Paak Plastic Surgery Centre and Craniofacial Foundation ศูนย์ศัลยกรรมใบหน้า เดอะพักตร์ พร้อมศูนย์ช่วยเหลือเด็กพิการทางใบหน้า
ที่ปรึกษา : อาจารย์คมสัน สกุลอำนวยพงศา
สาขา : สถาปัตยกรรมศาสตร์ออกแบบภายใน
คณะ : สถาปัตยกรรมศาสตร์และการออกแบบ
สถาบัน : มหาวิทยาลัยเทคโนโลยีพระจอมเกล้า
พระนครเหนือ
ติดต่อ
[email protected]
tel. 063-332-1221

























