
บรรพบุรุษของมนุษย์ก็เคยอยู่ในถ้ำมาก่อน จะแปลกอะไรหากจะเรากลับไปอาศัยถ้ำเป็นแหล่งพักพิงอีกครั้ง โดยเฉพาะถ้ำที่ออกแบบทีมสถาปนิกสัญชาติเวียดนามอย่าง H&P Architects
ที่มุมถนน Đông Anh ในย่านชานเมืองฮานอย ชุมชนซึ่งความวุ่นวายของเมืองใหญ่กำลังคลืบคลานเข้ามาพร้อมความเจริญ ทีมสถาปนิก H&P Architects เลือกที่จะสร้างทาวน์เฮ้าส์รูปร่างแปลกตาโดยหมายมั่นตั้งใจว่ามันจะแหล่งพักพิงของมนุษย์ถ้ำแห่งยุคดิจิตอล และถ้ำอิฐแห่งนี้ก็ได้คว้ารางวัล Architizer A+ ประเภท Residential-Private House รางวัลใหญ่ของวงการดีไซน์ประจำปีนี้ไปอย่างสวยงาม
ที่มุมถนน Đông Anh ในย่านชานเมืองฮานอย ชุมชนซึ่งความวุ่นวายของเมืองใหญ่กำลังคลืบคลานเข้ามาพร้อมความเจริญ ทีมสถาปนิก H&P Architects เลือกที่จะสร้างทาวน์เฮ้าส์รูปร่างแปลกตาโดยหมายมั่นตั้งใจว่ามันจะแหล่งพักพิงของมนุษย์ถ้ำแห่งยุคดิจิตอล และถ้ำอิฐแห่งนี้ก็ได้คว้ารางวัล Architizer A+ ประเภท Residential-Private House รางวัลใหญ่ของวงการดีไซน์ประจำปีนี้ไปอย่างสวยงาม

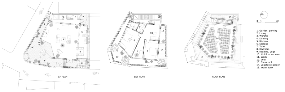
Brick Cave คือทาวน์เฮ้าส์สามชั้นที่แฝงตัวเข้ากับความวุ่นวายของเมืองได้อย่างลงตัว ผนังอิฐสองชั้นช่วยกลั่นกรองความอลหม่านของโลกภายนอกให้ผ่านเข้ามาภายในได้แต่พอประมาณ ในขณะเดียวกันก็ยังคงมีปฏิสัมพันธ์กับสิ่งที่อยู่แวดล้อมบ้านโดยอ้าแขนเปิดรับสายลมและแสงแดดจากธรรมชาติเข้ามาเติมแต่งสร้างสรรค์บรรยากาศการอยู่อาศัยให้มีชีวิตชีวา “ช่องเปิดของผนังก่ออิฐที่ดูเหมือนเรียงอย่างไม่มีแบบแผน ทำให้ Brick Cave มีความเชื่อมต่อของพื้นที่จากบริเวณเปิดโล่งและเป็นสาธารณะ สู่ส่วนที่ลับสายตาและเป็นส่วนตัว” ทีมสถาปนิกจาก H&P Architects อธิบาย “เราผสมผสานส่วนเปิดและส่วนปิดเพื่อสร้างความสัมพันธ์กับบริบทรอบ ๆ ที่ตั้ง ทำให้เส้นแบ่งระหว่างภายในกับภายนอกจางลง ที่นี่ บ้านกับถนน คนกับธรรมชาติ ทุกอย่างล้วนเชื่อมต่อและสัมพันธ์กัน”

การเลือกใช้อิฐสีแดงก่อเป็นผนังไม่เพียงสร้างรูปลักษณ์ที่โดดเด่นสะดุดตา หากลักษณะการวางอิฐก็มีการออกแบบให้เว้นช่องและทำมุมเพื่อสอดคล้องกับเส้นทางโคจรของพระอาทิตย์อย่างลงตัว ทำให้พื้นที่ภายในส่วนต่างๆ ของบ้านได้รับแสงสว่างจากธรรมชาติอย่างเต็มที่ตลอดทั้งวัน ในขณะเดียวกัน เมื่อมองจากภายนอก ผนังของบ้านก็มีลวดลายที่โดดเด่นสวยงาม ซึ่งกว่าจะได้รูปแบบการก่ออิฐของผนังแต่ละด้านนั้น ทีมสถาปนิกต้องใช้เวลาในการสังเกตการณ์และศึกษาทิศทางของแสงแดดที่ทำมุมต่างๆ กับตำแหน่งของบ้านอย่างถี่ถ้วน






ในขณะที่แสงสว่างส่องผ่านช่องบนผนังอิฐเข้ามาในบ้านได้ การใช้ผนังสองชั้นซึ่งกั้นกลางด้วยแนวทางเดินที่ร่มเย็นด้วยต้นไม้ก็ทำหน้าที่กรองความร้อนไม่ให้เข้ามารบกวนภายในบริเวณพักอาศัยจนมากเกินไป นอกจากนั้น ผนังชั้นนอกซึ่งลาดเอียงเข้าไปยังได้รับการออกแบบเพื่อเปิดรับมุมมองภายนอกที่ดีขึ้นอีกด้วย
ต้นไม้ใบหญ้าคือองค์ประกอบที่สำคัญของ Brick Cave นอกจากไม้กระถางที่เรียงรายระหว่างผนังอิฐชั้นนอกและผนังชั้นในแล้ว ดาดฟ้าของบ้านหลังนี้ยังเป็นพื้นที่สำหรับสวนลอยฟ้าที่เต็มไปด้วยพืชผักสวนครัวอีกด้วย
ต้นไม้ใบหญ้าคือองค์ประกอบที่สำคัญของ Brick Cave นอกจากไม้กระถางที่เรียงรายระหว่างผนังอิฐชั้นนอกและผนังชั้นในแล้ว ดาดฟ้าของบ้านหลังนี้ยังเป็นพื้นที่สำหรับสวนลอยฟ้าที่เต็มไปด้วยพืชผักสวนครัวอีกด้วย
ท่ามกลางจังหวะชีวิตที่เร่งรีบของเมืองใหญ่ Brick Cave พามนุษย์กลับเข้าถ้ำ ที่ซึ่งสามารถแหงนหน้ามองแผ่นฟ้าสีคราม รับลมเย็นๆ ที่พัดผ่านยอดไม้ ในขณะเดียวกันก็รักษาสายสัมพันธ์กับบ้านเมืองรอบข้าง ภายในถ้ำแห่งนี้ ผู้อยู่อาศัยจะสัมผัสได้ถึงประสบการณ์แปลกใหม่ที่อบอุ่นและคุ้นเคยในแบบที่ควรจะได้จากบ้านอย่างสมบูรณ์


















