by Alkhemist Architects
บทสนทนาระหว่างสภาพแวดล้อมและคน
บนพื้นที่ Indoor และ Outdoor ของ 26 IVY Park House


ซึ่งถ่ายบ้านที่ออกแบบโดย Richard Neutra และ Pierre Koenig
ภาพถ่ายสถาปัตยกรรมที่ได้รับการบันทึกโดย Julius Shulman สามารถจับจุดเด่นของอาคาร สภาพภูมิอากาศ วิถีชีวิต รวมถึงแก่นของแนวคิดออกมาอย่างหมดจด จนได้รับความไว้วางใจจากปรมาจารย์ในยุคนั้นมาบันทึกประวัติศาสตร์ของตนเอง และถือได้ว่าเขาเองคือปรมาจารย์ในสายอาชีพช่างภาพสถาปัตยกรรมในตำนานคนหนึ่ง
ภาพบ้าน Mid-Century Modern (MCM) ทาง California ใต้ เป็นช่วงเวลาที่โดดเด่นที่สุดช่วงหนึ่งของ Julius Shulman ภาพของเขาสะท้อนสภาพภูมิอากาศเขตร้อน และงานสถาปัตยกรรมที่ตอบรับกับบริบทของอากาศ รวมถึงการใช้กิจกรรมที่เกิดขึ้นเชื่อมโยงภายในและภายนอกบ้านเข้าด้วยกัน ล้วนเป็นส่วนหนึ่งของการอธิบายลักษณะนิสัยและวิถีชีวิตของชาว West Coast นั่นเอง
กลับมาที่สภาพภูมิอากาศร้อนชื้น (ขั้นรุนแรง) แบบบ้านเรามักไม่ค่อยอำนวยความหย่อนใจสำหรับการใช้ชีวิตภายนอกบ้าน อากาศจึงกลายเป็นอุปสรรคสำหรับบ้านที่มีสมาชิกชอบการสังสรรค์ และทำกิจกรรมนอกบ้านอยู่ไม่น้อย วิถีชีวิตที่สามารถเชื่อมโยงได้เช่นเดียวกับชาว West Coast ในอเมริกาได้นี้ จึงทำให้สำนักงานออกแบบ Alkhemist Architects ได้รับแรงบันดาลใจจากภาพถ่ายของ Julius Shulman ในการจับรายละเอียดเชื่อมโยงถึงความชื่นชอบของเจ้าของบ้าน เพื่อถ่ายทอดออกมาตอบโจทย์การปรับปรุงบ้านพักอาศัยส่วนตัว ที่เจ้าของบ้านให้ความสำคัญกับสภาพแวดล้อมที่เหมาะสม บนพื้นที่ขนาด 1,200 ตารางเมตร หลังนี้




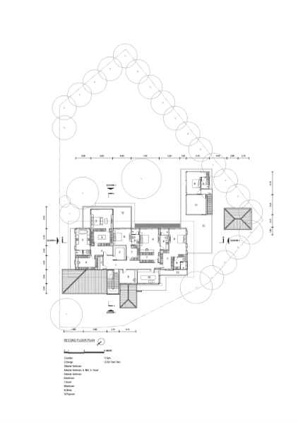
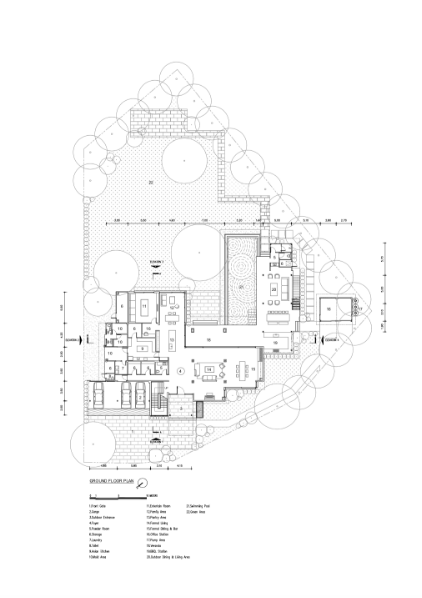
บ้าน 26 IVY Park ตั้งอยู่ในหมู่บ้านสังคมปิดขนาดใหญ่ที่สุดแห่งหนึ่งย่านชานเมืองกรุงเทพฯ ตัวบ้านสูงสองชั้น อาคารเดิมมีองค์ประกอบตกแต่งรูปร่างเดิมเป็นเส้นโค้งวงกลมขนาดใหญ่ เมื่อทำการปรับปรุงจึงได้เอาองค์ประกอบ และผนังภายในบางส่วนที่ขัดกับภาพรวมออกให้เป็นตัว “L” ที่ชัดเจนขึ้น ตัวบ้านโอบสระน้ำไว้ตรงมุมของรูปอาคารท่ามกลางพื้นที่สีเขียวของต้นไม้ใหญ่และสนามหญ้า
ในขณะที่ส่วนต่อเติมปลูกสร้างด้วยโครงสร้างคอนกรีตเสริมเหล็ก ส่วนเสาและคานใช้เหล็ก H beam ที่ทำให้ระยะระหว่างเสายาวขึ้น ช่วยให้พื้นที่ใช้สอยมากขึ้น ทั้งไม่บดบังทัศนียภาพ และมวลของอาคารเบาซึ่งเป็นลักษณะเด่นอย่างหนึ่งของ MCM ส่วนต่อเติมนอกจากจะช่วยตอบรับความต้องการด้านการใช้งานของพื้นที่และช่วยเติมเต็มรูปร่างบ้าน


ชั้นแรกของบ้านเชื่อมต่อพื้นที่ Public ทางสายตาทั้งภายนอกและภายในจนเสมือนเป็นผืนเดียวกัน เพียงถูกกั้นไว้ด้วยกายภาพของผนังกระจกใส และประตูบานเลื่อนกระจก พื้นที่ชั้นนี้สามารถรองรับการสังสรรค์ได้หลากหลายขนาดและจุดประสงค์ บ้านจึงโปร่งรับธรรมชาติเข้ามาสู่ภายใน แสงแดดจะถูกทอนความร้อนเพราะได้ชายคาหรือเฉลียงและน้ำจากสระว่ายน้ำ รวมถึงสีเขียวของต้นไม้ที่ล้อมรอบช่วยกรองให้บรรยากาศน่าอภิรมย์ขึ้น

ชั้นบนคือพื้นที่ส่วนตัวของสมาชิกภายในบ้าน อันมีการปรับเปลี่ยนผังไปจากเดิมเพื่อให้ทิศทางของห้องนอนทั้งหมดสามารถชมวิวของสนามหญ้า และไม้ยืนต้นเดิม พร้อมทั้งหันไปทางทิศตะวันออกที่สามารถรับแดดยามเช้าซึ่งเปิดจากหน้าต่างบานเลื่อนของแต่ละห้องเพื่อออกไปหรือรับเข้ามาชื่นชมธรรมชาติรอบบ้านได้ โดยสมาชิกในบ้านยังเสนอให้เพิ่มส่วนต่อเติมเป็นห้องนอนรับแขก และห้องออกกำลังกายแยกทางขึ้น-ลงจากอาคารหลักไว้อีกด้วย




จากภาพถ่ายสถาปัตยกรรมทางตอนใต้ California อันมีชื่อเสียงของ Julius Shulman สู่การปรับปรุงบ้าน 26 IVY Park ที่ประยุกต์ MCM ให้เข้ากับสภาพอากาศเขตร้อน เป็นสิ่งที่ผู้ออกแบบถอดรหัสจากความต้องการที่สะท้อนตัวตน และวิถีชีวิตของเจ้าของบ้าน รวมถึงสภาพแวดล้อมที่เจ้าของบ้านให้ความสำคัญไว้นั่นเอง










Project : 26 IVY Park House
Architectural Design : Alkhemist Architects
Architects : Kraipol Jayanetra, Perapon Suriyamongkol
Interior Design : whatandhow co.ltd
Lighting Design : whatandhow co.ltd
Landscape Design : P Landscape
Structural Engineering : OSS Engineering Co.,Ltd
M & E Engineering : OSS Engineering Co.,Ltd
Contractor : Phathomsub Construction Co.,Ltd
Project Consultant : J.R.M. Engineering Co.,Ltd (Sarawut Prasertsang)
Area : 1200 sq.m
Project Location : Nichadathani Village, Nothaburi
Project Year : 2018
Photographer : Tempography by Songtam Srinakarin
Architectural Design : Alkhemist Architects
Architects : Kraipol Jayanetra, Perapon Suriyamongkol
Interior Design : whatandhow co.ltd
Lighting Design : whatandhow co.ltd
Landscape Design : P Landscape
Structural Engineering : OSS Engineering Co.,Ltd
M & E Engineering : OSS Engineering Co.,Ltd
Contractor : Phathomsub Construction Co.,Ltd
Project Consultant : J.R.M. Engineering Co.,Ltd (Sarawut Prasertsang)
Area : 1200 sq.m
Project Location : Nichadathani Village, Nothaburi
Project Year : 2018
Photographer : Tempography by Songtam Srinakarin

